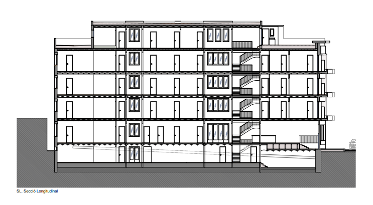
Hotel building in Cami Ral, Premiá de Mar
Unique opportunity for investors! Spectacular aparthotel for sale on the beachfront.
This hotel building has been almost completely renovated, with 90% of the work already done. It consists of 930 m² distributed over six floors, including ground floor, basement, attic and three additional floors, all accessible by a new elevator.
The aparthotel has 17 fully equipped and updated rooms, ready to offer an unforgettable experience to guests. Its location is unbeatable: just a few steps from the Renfe station, facilitating access for tourists and visitors.
This unrented property is perfect for those looking to invest in a hotel business with great potential for profitability. Do not miss this opportunity to acquire a unique property in a privileged environment.





